



园区的另一发展战略是新建一栋形象鲜明的教学楼,最高5层,位于2号地块,东至 GonaParade 分区南端,西达 Kelvin Grove 路,在北面的地标建筑“中心”对面。这是昆士兰科技大学 Kelvin Grove 校区内最受瞩目的区域之一。

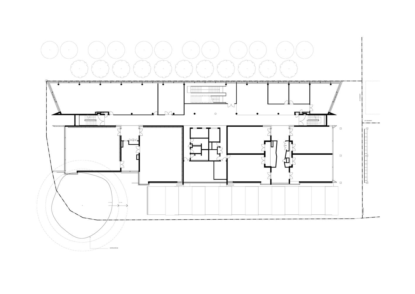
这条街道是学生团体在课余时间集会的地方,给场所带来真正的动感和活力。三层高的空间旨在与室外环境良好互动,一系列级联楼梯和交错的空隙带来与上层空间的视觉联系。




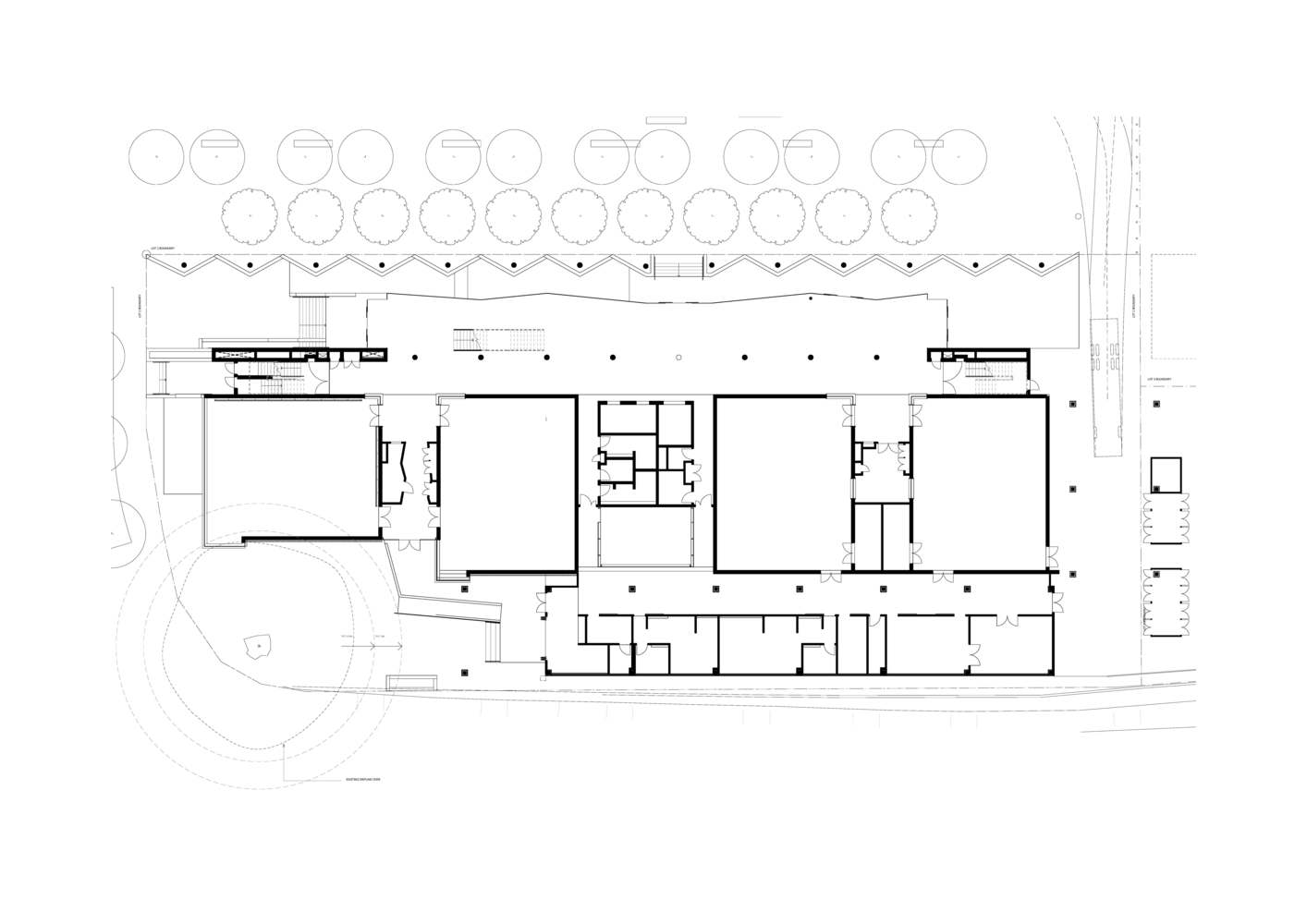
两座建筑将共同为昆士兰科技大学的创意产业园区创造一个“门户”。在 CIP2 中,新建筑在一系列需要保护和加固的单层遗产建筑北侧半围合。遗产建筑环绕 ChauvelPlace,给 CIP2 带来充满活力的“L”形边缘。

创意产业园区二期(CIP2)将为集舞蹈、戏剧、音乐和视觉艺术的理论和技术研究于一体的创意产业学院提供统一空间。CIP2 将与现有的 CIP1 相连接,成为创意产业学士学位相关学生和教职工在校园中的门户和单一身份认证。





我们期望将 CIP2 建设为一个集合了创意产业的团结群体环境,提供丰富多样的空间序列体验,借以刺激学习和社交互动。核心概念之一是将主要通路、会议区、咖啡馆和公共区域设置在建筑边缘,在2号地块较封闭的工作室空间旁创造高通透的学生“街道”





特别提醒:本站所有作品收集于网络,版权均属各自所有者,本站素材仅提供学习参考,请勿商用,如有侵权请联系我们邮箱(200894114#qq.com,把#换成@)删除,要购买全部版权商用请自行联系作者,谢谢!
相关标签搜索:


