



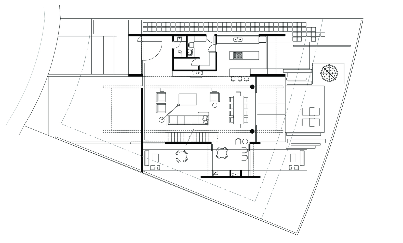
车库和音乐工作室在地下使用。 因此,底层可以作为连接起居,用餐,厨房和烧烤的大型休息室。 在餐厅前面设置了外部和部分覆盖的游泳池




在南部的办公室里,用刚果的混凝土来作为区分。 除了巴西现代主义建筑的传统元素之外,还安装了这些设备,以保证对办公室的视觉保护。 小裂缝更确保了外部视觉效果。

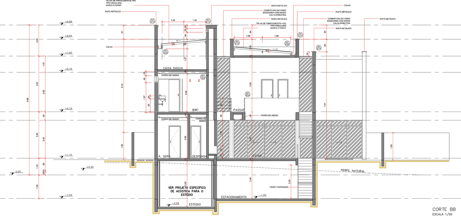
六个平面创造了三个体块,主要访问是在最大的一个体块,从进入房子的人的左边,在定义入口的体块之间创建层次结构。 在南部,办公室在悬臂式结构中前进了四米。 在北视图中,地形背景、平面和体块在它们之间也没有层次结构

该项目的体积基于北/南方向六大结构方案。 在这些计划中,光线和风力的影响使得铝框架形成了轻盈感和阴影。 在东西方向,我们用木头做了一个平面,将其与其他结构线区分开来。










特别提醒:本站所有作品收集于网络,版权均属各自所有者,本站素材仅提供学习参考,请勿商用,如有侵权请联系我们邮箱(200894114#qq.com,把#换成@)删除,要购买全部版权商用请自行联系作者,谢谢!
相关标签搜索:


