


人们在多年后的今天重新看到这栋建筑时,需要看多几眼才能发现变化:高楼新立面是对原来立面的重新演绎,在旧立面上的光照元素显得十分沉重,而现在焕然一新。更多的是,仔细观察下:金属立面截面使用了玻璃,以达到从光亮到黑暗的特别转变。而且特别的是,柱基通道有了明显变化:以前这部分是封闭的,并让人觉得难受,而现在变得透明化且显得更加欢迎客人。这一变化加强了建筑元素间的连接,也凸显了校园的重要性。建筑和其周边也突出了校园入口的存在。




在立面上,建筑设计包括了新中庭和新装修,大楼以节能为目标来进行向可持续发展的转变,以此来增加舒适度、弹性使用度和现代感。在大楼右侧在不同使用者之间,不同实践空间、教职工空间、教学空间和变换和长短期的弹性使用空间之间有着合理的分割和联系,并且设计师选择了高质量材料以让建筑可以更加适应未来发展。

此次设计重心在于维持原先建筑的质量,并且在有可能的基础上,根据原先建筑结构基础上进行设计。高楼强有力的混凝土构造在新设计下更加突出了。厚重的混凝土楼层梁也可以被看见了,以此来增强空间感。在原有特殊混凝土构造的基础上建造使得重量平衡成为设计过程的主要引导。在移除原先的混凝土后,带有三重玻璃、轻型混凝土和阳极电镀铝板的立面则可以安装上去,并为内部提供阳光直射保护。


在翻新建筑设计早期时,主要建筑师被选为世上最重要的牙科学科大楼的设计师,这栋建筑也是大学师生最喜欢的建筑之一。这次设计也向大众展示了在那个时期经常被人诟病的混凝土建筑的设计潜力。就像一只凤凰一样,在其新设计的光辉中,这栋建筑在47年之后涅?重生。这也是设计师 Dijkema 在这个校园设计的建筑之一。

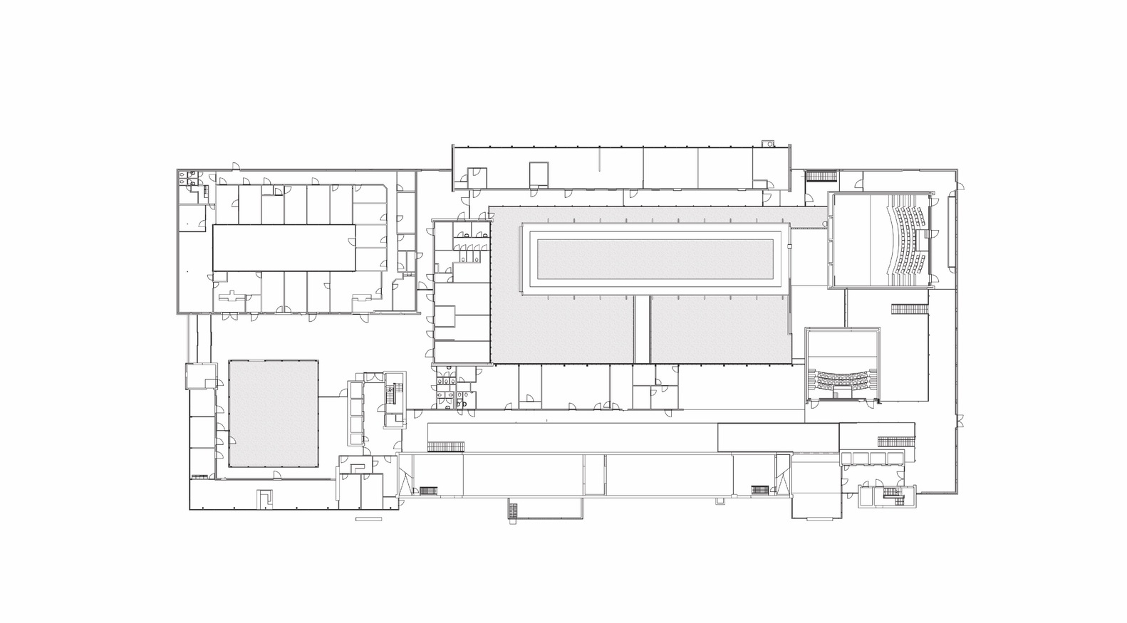
在建筑最原始的状态下,楼房较低且容易让人迷路。低层的诊所和高层的教学空间都是让路人难以找到的。而翻新最重要的一点改造就是让明了的“Kliniekenplein”(诊所广场)以中央中庭的形式作为人们进入建筑最先接触的地方,这也让自然光更多地进入到建筑内部。中庭边上有着一系列有着美妙光照照亮的诊疗室,这些地方通过巧妙的动线设计和柔软的材料使用,成为了害怕牙医的大人和小孩感到舒服的地方。

建筑本身的构造一直是设计的出发点。原先大楼内漂亮复杂的楼梯间、铺砖地面以及覆盖的墙面也重新回到大楼里。在部分塑形混凝土核心筒墙面和清晰的涂漆的人工部分都体现了大楼的严密性,并提供了一定的向导性。牙科学科的使用者的严谨性和大楼的粗旷感形成了微妙的对比。光与影之间的调和以及新鲜光滑的材料和颜色共同配合成为了这栋坚实大楼涅?重生的设计核心
特别提醒:本站所有作品收集于网络,版权均属各自所有者,本站素材仅提供学习参考,请勿商用,如有侵权请联系我们邮箱(200894114#qq.com,把#换成@)删除,要购买全部版权商用请自行联系作者,谢谢!
相关标签搜索:


