






















特别提醒:本站所有作品收集于网络,版权均属各自所有者,本站素材仅提供学习参考,请勿商用,如有侵权请联系我们邮箱(200894114#qq.com,把#换成@)删除,要购买全部版权商用请自行联系作者,谢谢!
相关标签搜索:
21 张 《平原边缘的房子》-Skupaj Arhitekti在斯洛文尼亚建造“拒绝上下文模仿”的混凝土房屋
8 张 被雪松环绕的房子
1 张 蓝色房子窗户图
1 张 头戴房子帽男模
28 张 北卡罗来纳州的房子
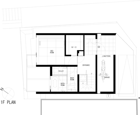
8 张 追求精简高效生活方式的完美选择
11 张 680.完整的CGI房子
20 张 Architecture-建筑家居设计
1 张 阳光照耀下的房子建筑
1 张 空中的房子
1 张 蓝天下修房顶的工人
1 张 蓝色魔幻欧式森林小屋
1 张 海边日落旁边的小屋
1 张 童话的现代城市公路
1 张 粉红色房屋一角
41 张 室内绿地和天然材料的大气公寓
25 张 橙色顶楼房屋的室内设计
14 张 菲腊酒店-位于一个陡峭的斜坡上,有两个楼层,其中包括一个悬臂。顶楼两旁的窗户可以眺望泳池。
5 张 令人眩晕的悬崖屋设计-澳大利亚住房公司Modscape开发的悬崖屋,响应数家极端沿海地点的客户请求,顶楼有一个隐蔽的车库
2 张 纽约流行高线公园旁边的一幢11层高公寓楼,在顶楼可以俯瞰纽约最热门的旅游景点
20 张 东京一条长长白色楼梯通向直奔顶楼的小房子
7 张 曼哈顿的顶楼花园-俯瞰奥林匹克公园的135米的摩天大楼
23 张 日本建筑师-东京的房子顶楼
18 张 包裹在铝管中的纳什维尔表演艺术中心
26 张 K?nigsberger-Vannucchi用瓷器和木材装饰的圣保罗摩天大楼
1 张 晴空下的大本钟:伦敦地标经典特写
6 张 陡峭的立陶宛式住宅
1 张 浦江暮色下的上海陆家嘴天际线
1 张 晴空下的东京塔:经典红白地标特写
9 张 森林之眼-自然共生弧形山野别墅 极简禅意的现代住宅设计
15 张 Lomas del Valle之家-现代混凝土原木别墅 自然共生的极简住宅设计
15 张 自然共生现代别墅 木石材质打造通透居所
27 张 勒·柯布西耶故居
6 张 温哥华第一座以“古玻璃海绵礁”为灵感的超高层摩天大楼
5 张 OJM之家 __ 现代钢结构架空住宅 自然共生打造极简主义私宅设计